Ridgefield Recreation and Community Center
A Recreation and Community Center is coming to Ridgefield!
As the City of Ridgefield grows, one community need the City is actively working to meet is building a community hub that provides space for recreation, connection and belonging.
Project Background
A feasibility study for a YMCA in Ridgefield was conducted in 2016. The study concluded that there was a very high level of interest for the Ridgefield YMCA and identified features that would be critical to success. The City began searching for property that could be used for a recreation center.
In 2020, the City was contacted by a local private developer who expressed interest in assisting community with building a Recreation Center.
The coronavirus pandemic and associated economic instability led to significant construction cost increases and market changes from 2020 to 2023 that delayed the ability to begin construction. The City then began to work with the team to explore the possibility of creating a Community Center, to replace the one lost with the library expansion, alongside the Recreation Center to tie together both of these vital community assets and create a feasible funding structure for the project.
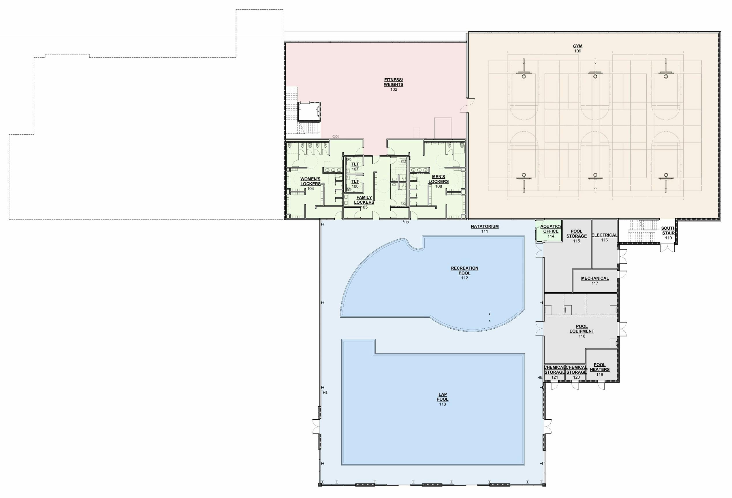
In 2023, the project team presented a plan to build two separate centers, a recreation center and a community center, operating as one, with the entire facility managed by a recreation partner. Early design features a LEED certified, two-story building with large windows, two pools, an indoor gym with elevated track, fitness center, locker rooms, programming space and a Community Center with a kitchen. The site is designed to maintain a natural park like setting complimented by a beautiful facility featuring exposed wood and a multi-use trail.
Latest Update - August 1, 2025
City of Ridgefield Moving Forward with Recreation and Community Center Project
The City of Ridgefield is moving forward with the Recreation and Community Center project as planned, with construction scheduled to begin in Spring 2026. Today, the YMCA of Columbia-Willamette informed the City that it is withdrawing as a partner in the project. While this outcome is disappointing, the City had anticipated this possibility and is well-prepared to continue delivering this much-anticipated facility to the community.
Ridgefield’s vision for a family-focused recreation and community center has been in the works since 2016. Over the years, the City has made significant progress—purchasing land, contributing to facility design, committing public funding to the community center portion, and identifying opportunities for strategic partnerships. The YMCA had been a potential partner from early in the process, but was ultimately unable to make a financial commitment to the project.
"Our City Council and leadership team have taken proactive steps to keep this important project moving forward,” said Mayor Matt Cole. “We recognized the Y’s uncertainty around its ability to raise the necessary capital for this project. While we hoped that the YMCA would be our partner, we remain committed to delivering a high-quality community and recreation center for Ridgefield residents.”
From the beginning, the City planned for flexibility in the facility’s development, identifying multiple partnership models and designing the building for phased construction. This fall, the City will begin actively seeking a new partner to support the recreation center component. If a partner is not identified, the facility can still be built in two phases.
“We know the demand for this facility is high and we are confident it will succeed,” added Mayor Cole. “Ridgefield is home to an active, engaged community that’s ready to make the most of this space. While we understand the YMCA’s decision, we also believe this was a missed opportunity.”
The Ridgefield Recreation and Community Center project remains on schedule. After design modifications made in June, the facility is now at 90% design and in the permitting phase. Construction is expected to begin in Spring 2026. Importantly, the project will be completed without raising taxes or increasing financial impacts on Ridgefield residents.
The YMCA has shared that their Ridgefield programming, including summer camps, summer lunches, senior connections and events will continue and the City appreciates their work to serve the community.





